Zaczynamy
Data dodania: 2013-12-23



Witam wszystkich uzytkowników mojabudowa.pl
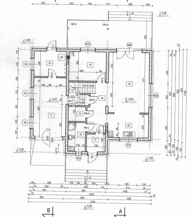
Wiosną zaczynam przygodę z budową domku na bazie projektu APS193 z pracowni Archi-projekt. Mój projet jest robiony indywidualnie i jak widać na zdjęciach troszkie zmian wprowadziliśmy. Czekam na komentarze i Pozdrawiam.
Komentarze